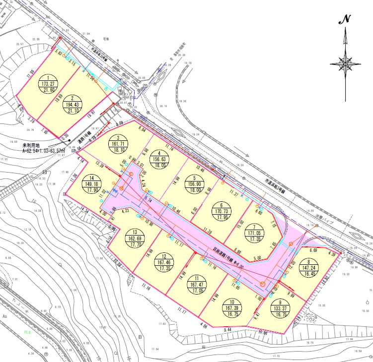
| 区画 | 面積(㎡) | 面積(坪) | 坪単価(円) | 価格(税込) |
|---|---|---|---|---|
| 2 | 194.43 | 58.81 | 248,000 | 14,584,880円 |
| 3 | 161.71 | 48.91 | 199,000 | 9,733,090円 |
| 4 | 156.63 | 47.38 | 210,000 | 9,949,800円 |
| 5 | 156.90 | 47.46 | 214,000 | 10,156,440円 |
| 8 | 147.24 | 44.54 | 238,000 | 10,600,520円 |
| 9 | 133.37 | 40.34 | 204,000 | 8,229,360円 |
| 14 | 149.18 | 45.12 | 207,000 | 9,339,840円 |
| 所在地 | 鳥取市浜坂二丁目416ー64他 | ||
|---|---|---|---|
| 交通手段 | 浜坂小学校入口バス停より徒歩1分(80m) | 校区 | 浜坂小学校 |
| 価格 | 8,229,360円~ | ||
| 土地面積 | 147.24㎡~ | ||
| 都市計画 | 市街化区域 | ||
| 用途地域 | 第一種中高層住居専用 | 地目 | 宅地 |
| 建ぺい率 | 60% | 容積率 | 200% |
| 道路付 | 区画によって異なります。詳細はお問い合わせください。 | ||
| 接道の種類 | |||
| 現状 | 更地 | 引渡 | 即時 |
| 建物構造 | |||
| 権利 | --- | ||
| 設備 | |||
| 備考 | 別途仲介手数料が必要となります。 区画2:電柱・支線2本あり、63㎡(19.05坪)雑種地付 区画3:電柱・支線2本あり 区画8:電柱・支線2本あり 区画14:電柱・支線2本あり | ||
| 取引形態 | 媒介 | ||
| 登録日 | 2025/10/02 | ||